Trilocale in vendita

Viterbo, Via Gian Lorenzo bernini - Bagnaia
€ 115.000
3 locali 3 locali
80 Mq 80 Mq
1 bagno 1 bagno

Trilocale in vendita

Viterbo, Via Gian Lorenzo bernini - Bagnaia

Descrizione annuncio

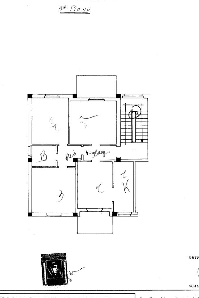
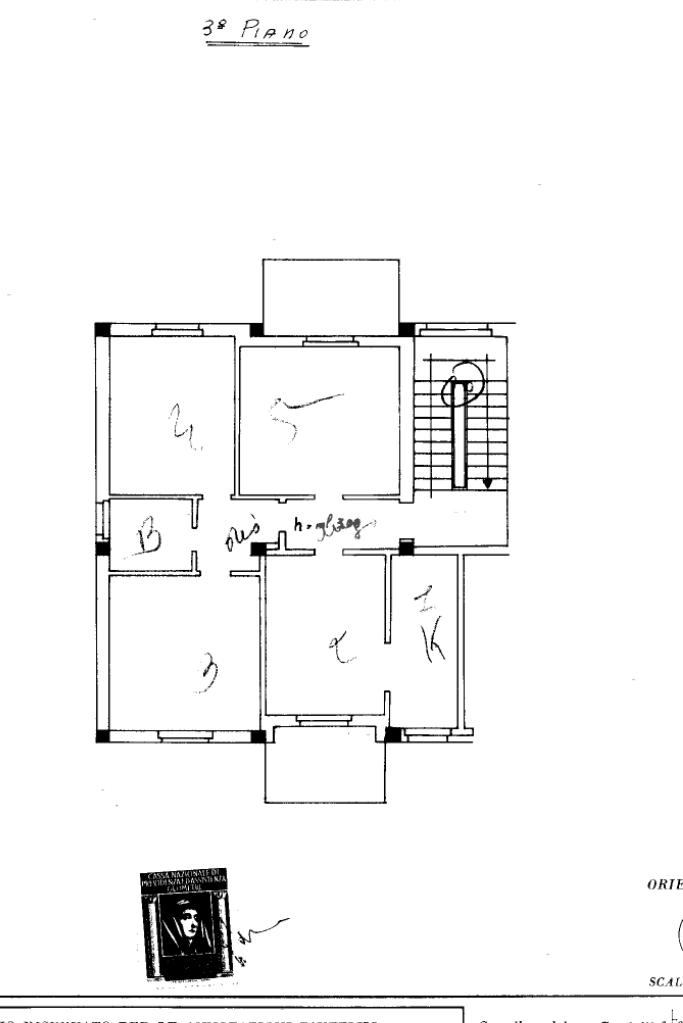
In vendita – Trilocale con garage e due terrazzi a Bagnaia (Via Gian Lorenzo Bernini)

A soli 100 metri dalla piazza principale e dai principali servizi, proponiamo in vendita un trilocale ristrutturato internamente nel 2018, situato al terzo piano senza ascensore in una palazzina tranquilla.

Composizione interna:
- Soggiorno luminoso con accesso al terrazzo abitabile
- Cucina separata con secondo terrazzo abitabile
- Due camere da letto
- Bagno finestrato con doccia

Accessori e comfort:
- Garage spazioso di 18 mq al piano seminterrato, compreso nel prezzo
- Riscaldamento autonomo con caldaia e termosifoni
- Condizionatori già installati

Soluzione pronta per essere abitata, ideale per chi cerca una casa completa, ben rifinita e in ottima posizione a Bagnaia.

Mostra tutto

Nelle vicinanze

Trasporto pubblico Trasporto pubblico
Bagnaia
Bagnaia
360 m
Vitorchiano
Vitorchiano
2,5 Km
Viale Fiume (Viterbo)
Viale Fiume (Viterbo)
280 m
Ortana Bagnaia/ Pian della Quercia
Ortana Bagnaia/ Pian della Quercia
730 m
Supermercati Supermercati
Lidl
2,9 Km
COOP
2,9 Km
Ristoranti Ristoranti
Ristoranti
450 m
Ristorante Pizzeria San Valentino
2,9 Km
Mostra tutto

Caratteristiche

Rif.:
61131845
Piano:
3 di 3 (ultimo Piano)
Box:
1
Posti auto:
1
Terrazzi:
2
Camere da letto:
2
Mostra tutto
Prezzo Prezzo
€ 115.000
Rata mutuo Rata mutuo
€ 542 / mese
Spese annue Spese annue
€ 0
Proponi il tuo prezzoProponi il tuo prezzo

Classe Energetica

G
G
G
G
G
G
G
G
G
Anno di costruzione:
1970
Riscaldamento:
Autonomo
Tipo impianto:
A radiatori
Tipo alimentazione:
Metano

Ti interessa visionare l'immobile?

Fissa un appuntamento  Fissa un appuntamento

Richiedi informazioni

Clicca su Leggi per aprire l'informativa
* Questi campi sono obbligatori

Calcola il tuo mutuo

Semplice e senza impegno
Anticipo

( % )
Mutuo

( % )

pochi semplici passi

inserisci i tuoi dati
Questionario completato
Grazie per aver richiesto un appuntamento senza impegno con un nostro Consulente del Credito e Assicurativo.

Hai inserito correttamente tutti i dati necessari e a breve riceverai una e-mail con un link da convalidare per inviare i tuoi dati.
Affiliato
Mec Srl
Viale Fiume, 71/L 01100 Viterbo (VT)

Il nostro staff


  • Paolo Mecocci
    Affiliato

  • Alessia Di Prospero
    Coordinatrice

  • Albi Koci
    Responsabile

  • Marco Mecocci
    Affiliato

  • Lorenzo Milioni
    Collaboratore

  • Martina Piccinno
    Collaboratrice
Viale Fiume, 71/L 01100 Viterbo (VT)
Zona: Viterbo Bagnaia-Vitorchiano
Mostra su mappa
Orari: Lun-Ven 9.00/13 - 15/19.30 Sab 9/17 orario continuato
Affiliato
Mec Srl
Viale Fiume, 71/L 01100 Viterbo (VT)

2026 Tecnocasa Franchising S.p.A. - P. IVA 08365160152 - Via Monte Bianco 60/A 20089 Rozzano (MI). Ogni agenzia ha un proprio titolare ed è autonoma. Privacy policy | Policy utilizzo | Cookie policy