Trilocale in vendita

Viterbo, Via giambologna - Bagnaia
€ 85.000
3 locali 3 locali
85 Mq 85 Mq
2 bagni 2 bagni

Trilocale in vendita

Viterbo, Via giambologna - Bagnaia

Descrizione annuncio

Bagnaia, a pochi passi da Piazza XX Settembre e dalla bellissima Villa Lante, proponiamo in vendita luminoso trilocale completamente ristrutturato.

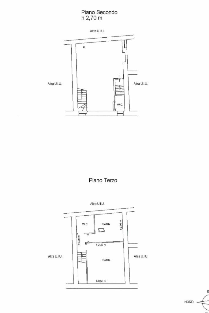
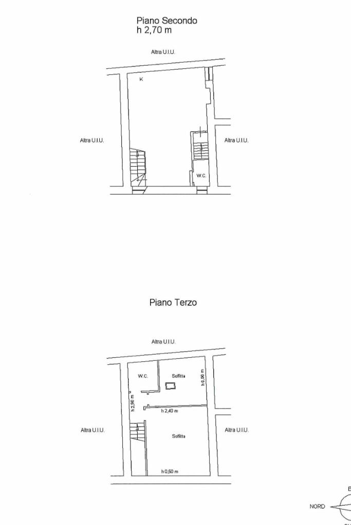
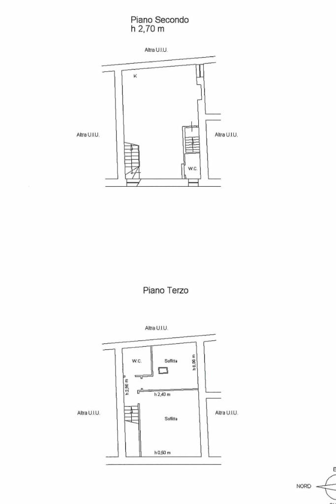
Questo immobile si trova al secondo piano di un piccolo condominio composto soltanto da due unità abitative e si sviluppa su due livelli.

La casa è stata completamente ristrutturata nel 2012 e rappresenta il perfetto connubio tra un appartamento ultramoderno con spazi comodi e confortevoli e un immobile del centro storico a ridosso delle mura.

Il visitatore al suo ingresso è accolto da un grande soggiorno con angolo cottura e termo-camino, un piccolo balcone e un bagno di servizio con finestra.

L’appartamento, gode di un'ottima esposizione e grazie ad essa risulta molto luminoso.
Dal soggiorno si può accedere alla zona notte attraverso una scala in vetro, elemento molto elegante e di design che arricchisce tutto l’ambiente.

Qui troviamo una camera matrimoniale, un secondo vano che si presta a essere adibito a cabina armadio/stireria o ripostiglio e un secondo bagno ampio con velux e doccia, dotato anche di cromoterapia.

Il riscaldamento è autonomo con caldaia a gas metano e si completa di impianto di climatizzazione e termo-camino.

Si tratta di una soluzione ideale per chi è alla ricerca di una casa unica nel suo genere, perfetta come prima casa o uso investimento come struttura ricettiva.

Mostra tutto

Nelle vicinanze

Trasporto pubblico Trasporto pubblico
Bagnaia
Bagnaia
170 m
Vitorchiano
Vitorchiano
2,4 Km
Viale Fiume (Viterbo)
Viale Fiume (Viterbo)
220 m
Ortana Km 5.400/ Gramignana
Ortana Km 5.400/ Gramignana
640 m
Supermercati Supermercati
Lidl
3,0 Km
Ristoranti Ristoranti
Ristoranti
110 m
Mostra tutto

Caratteristiche

Rif.:
61140776
Piano:
2 di 2 (Piano medio)
Balconi:
1
Camere da letto:
2
Arredamento:
Assente
Condizionamento:
Assente
Mostra tutto
Prezzo Prezzo
€ 85.000
Rata mutuo Rata mutuo
€ 401 / mese
Spese annue Spese annue
€ 0
Proponi il tuo prezzoProponi il tuo prezzo
Immobile valutato con T·Valuta

Classe Energetica

G
G
G
G
G
G
G
G
G
EP invernale del fabbricato:
EP estiva del fabbricato:
Anno di costruzione:
1960
Riscaldamento:
Autonomo
Tipo impianto:
A radiatori
Tipo alimentazione:
Metano

Ti interessa visionare l'immobile?

Fissa un appuntamento  Fissa un appuntamento

Richiedi informazioni

Clicca su Leggi per aprire l'informativa
* Questi campi sono obbligatori

Calcola il tuo mutuo

Semplice e senza impegno
Anticipo

( % )
Mutuo

( % )

pochi semplici passi

inserisci i tuoi dati
Questionario completato
Grazie per aver richiesto un appuntamento senza impegno con un nostro Consulente del Credito e Assicurativo.

Hai inserito correttamente tutti i dati necessari e a breve riceverai una e-mail con un link da convalidare per inviare i tuoi dati.
Affiliato
Mec Srl
Viale Fiume, 71/L 01100 Viterbo (VT)

Il nostro staff


  • Paolo Mecocci
    Affiliato

  • Alessia Di Prospero
    Coordinatrice

  • Albi Koci
    Responsabile

  • Marco Mecocci
    Affiliato

  • Lorenzo Milioni
    Collaboratore

  • Martina Piccinno
    Collaboratrice
Viale Fiume, 71/L 01100 Viterbo (VT)
Zona: Viterbo Bagnaia-Vitorchiano
Mostra su mappa
Orari: Lun-Ven 9.00/13 - 15/19.30 Sab 9/17 orario continuato
Affiliato
Mec Srl
Viale Fiume, 71/L 01100 Viterbo (VT)

2026 Tecnocasa Franchising S.p.A. - P. IVA 08365160152 - Via Monte Bianco 60/A 20089 Rozzano (MI). Ogni agenzia ha un proprio titolare ed è autonoma. Privacy policy | Policy utilizzo | Cookie policy