Villa singola in vendita

Vitorchiano, Strada Bandita - Vitorchiano - Pallone - Paparano
€ 950.000
Prezzo aggiornato
10 locali 10 locali
350 Mq 350 Mq
5 bagni 5 bagni

Villa singola in vendita

Vitorchiano, Strada Bandita - Vitorchiano - Pallone - Paparano

Descrizione annuncio

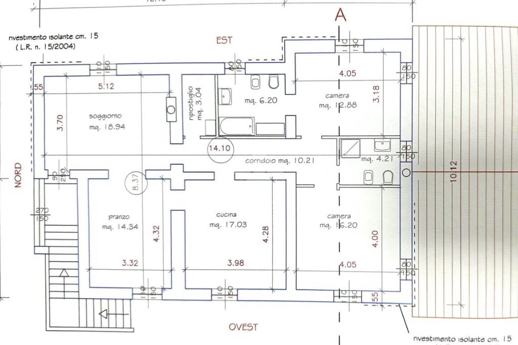
Proponiamo in vendita antico casale completamente ristrutturato di circa 350 mq, immerso nel verde e circondato da 5 ettari di terreno di proprietà con circa 3.000 piante, dotato di impianto di irrigazione con linea dedicata per ogni fila.

L’accesso alla proprietà avviene tramite un unico cancello elettrico con vialetto in brecciolino. Il casale è suddiviso in tre appartamenti con ingressi indipendenti.

Prima abitazione al piano terra con grande terrazzo con pergolato in legno e glicine, composto da ampio disimpegno, soggiorno con camino che puo essere facilmente trasformato con l'inserimento di un blocco termocamino, cucina abitabile in muratura con annesso ampio ripostiglio con lavello, tre camere da letto, due bagni e due armadi a muro. Presenti travi a vista, riscaldamento a pavimento e termosifoni.

Seconda abitazione al primo piano composto da soggiorno con termocamino, sala da pranzo, cucina in muratura, due camere da letto e due bagni, ripostiglio ed un sottotetto praticabile con impianti predisposti. Riscaldamento tramite termosifoni e termocamino.

Terza abitazione indipendente al piano terra con soggiorno e cucinotto a vista, due camere da letto, bagno e ripostiglio, riscaldamento con termosifoni e caldaia.

La proprietà comprende inoltre 3 magazzini e un’ampia tettoia con pannelli solari adibita a rimessa auto.

Ideale per una grande famiglia che desidera vivere insieme mantenendo la propria indipendenza, oppure per attività agricola o ricettiva.

Mostra tutto

Nelle vicinanze

Trasporto pubblico Trasporto pubblico
Fornacchia
Fornacchia
2,7 Km
Vitorchiano
Vitorchiano
2,7 Km
Ortana Km 9.600
Ortana Km 9.600
1,2 Km
Ortana Km 10.700
Ortana Km 10.700
1,3 Km
Supermercati Supermercati
Superconti
2,1 Km
Bar Bar
Caffè centrale
1,7 Km
Mojito Caffe
1,7 Km
Ristoranti Ristoranti
Villa San Michele
2,5 Km
Basilicò
2,5 Km
Mostra tutto

Caratteristiche

Rif.:
61189381
Piano:
1 di 1 (Piano su più livelli)
Box:
1
Posti auto:
4
Terrazzi:
1
Camere da letto:
7
Mostra tutto
Prezzo Prezzo
€ 950.000
Rata mutuo Rata mutuo
€ 4.513 / mese
Spese annue Spese annue
€ 0
Proponi il tuo prezzoProponi il tuo prezzo

Classe Energetica

C
C
C
C
C
C
C
C
C
EP globale non rinnovabile:
175.00 kW h/m² anno
EP globale rinnovabile:
175.00 kW h/m² anno
EP invernale del fabbricato:
EP estiva del fabbricato:
Anno di costruzione:
1900
Riscaldamento:
Autonomo
Tipo impianto:
A pavimento
Tipo alimentazione:
Altro

Prezzo ridotto di €1 (14%%)

Ti interessa visionare l'immobile?

Fissa un appuntamento  Fissa un appuntamento

Richiedi informazioni

Clicca su Leggi per aprire l'informativa
* Questi campi sono obbligatori

Calcola il tuo mutuo

Semplice e senza impegno
Anticipo

( % )
Mutuo

( % )

pochi semplici passi

inserisci i tuoi dati
Questionario completato
Grazie per aver richiesto un appuntamento senza impegno con un nostro Consulente del Credito e Assicurativo.

Hai inserito correttamente tutti i dati necessari e a breve riceverai una e-mail con un link da convalidare per inviare i tuoi dati.
Affiliato
Mec Srl
Viale Fiume, 71/L 01100 Viterbo (VT)

Il nostro staff


  • Paolo Mecocci
    Affiliato

  • Alessia Di Prospero
    Coordinatrice

  • Albi Koci
    Responsabile

  • Marco Mecocci
    Affiliato

  • Lorenzo Milioni
    Collaboratore

  • Martina Piccinno
    Collaboratrice
Viale Fiume, 71/L 01100 Viterbo (VT)
Zona: Viterbo Bagnaia-Vitorchiano
Mostra su mappa
Orari: Lun-Ven 9.00/13 - 15/19.30 Sab 9/17 orario continuato
Affiliato
Mec Srl
Viale Fiume, 71/L 01100 Viterbo (VT)

2026 Tecnocasa Franchising S.p.A. - P. IVA 08365160152 - Via Monte Bianco 60/A 20089 Rozzano (MI). Ogni agenzia ha un proprio titolare ed è autonoma. Privacy policy | Policy utilizzo | Cookie policy